Mieszkanie na wynajem Poznań, Naramowice

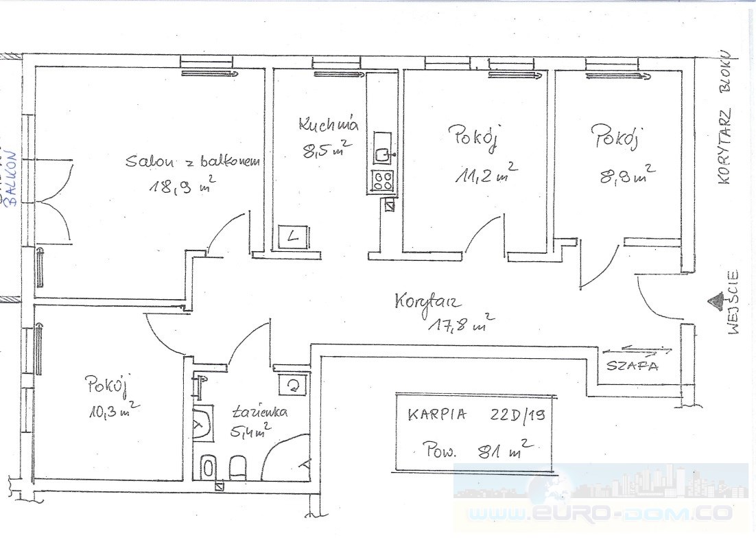
4 pokoje
81.00 m²
37,04 zł/m2
3 piętro
EDO-MW-4959
Powiadom o spadku ceny

3 000 zł

Mieszkanie na wynajem

Szczegóły oferty

Symbol oferty EDO-MW-4959
Powierzchnia 81,00 m²
Liczba pokoi 4
Rodzaj budynku blok
Standard
Piętro 3
Liczba pięter w budynku 3
Garaż miejsce garażowe
Stan lokalu po generalnym remoncie
Typ kaucji jednomiesięczna
Okna PCV
Balkon jest
Rok budowy 2007
Gaz brak
Woda ciepła - miejska
Ogrzewanie C.O. miejskie
Umeblowanie częściowo umeblowane
Winda tak
Liczba wind 1
Usytuowanie dwustronne
Klucze tak
Pomieszczenia
Certyfikat energetyczny
Wskaźnik EP kwh/(m2 rok)
102.8
102.8
102.8
102.8
102.8
102.8
102.8
102.8
Wskaźnik EP: 102.8
kwh/(m2rok)
Wskaźnik EK: 125,92
kwh/(m2rok)
Wskaźnik EU: 87,6
kwh/(m2rok)
Pośrednik Nieruchomości

Pośrednik Nieruchomości

Pośrednik Nieruchmości
Nr licencji: 16149

Napisz wiadomość 99 Ofert

Opis nieruchomości

4-pokojowe mieszkanie | Mieszkanie rok temu przeszło remont | ul. Karpia | BALKON | GARAŻ

NOWE STANDARDY REKLAMY: oprócz tradycyjnych zdjęć:

  1. Wirtualna wizyta w mieszkaniu 360 stopni ​​​​​​ https://panoramy.galactica.pl/virgo/363001
  2. Spacer online - Film YouTube-  https://youtu.be/esgJrRcZkYw
  3. Szczegóły i więcej zdjęć na https://www.euro-dom.co/oferty/mieszkania/wynajem

MIESZKANIE
Mieszkanie zostało w całości wyremontowane w roku 2022. Nowa zabudowa kuchni, część wyposażenia łazienki, podłogi jak i odmalowane ściany to zdecydowany atut o którym warto wspomnieć.
Mieszkanie znajduję się na ostatnim z 3 pięter bloku wybudowanego w 2007 roku.  Na powierzchnię 81m2 składają się 4 pokoje, największy z nich posiada wyjście na balkon, duże okna sprawiają, że całe mieszkanie jest bardzo jasne  i podkreśla to jego przestronność. Pozostałe pokoje są nieco mniejsze, ale bardzo przytulne, są one częściowo umeblowane. Atutem mieszkania jest oddzielna kuchnia, jest ona w pełni wyposażona w sprzęty takie jak piekarnik, płyta indukcyjna, okap, lodówka z zamrażalnikiem czy mikrofalówka. W korytarzu znajduje się pojemna szafa. Miejsce postojowe w garażu podziemnym dodatkowo płatne 300 zł.

BLOK i POŁOŻENIE
Mieszkanie zlokalizowane jest na poznańskim osiedlu Naramowice, na ulicy Karpia. W okolica bogata jest w rozwiniętą infrastrukturę handlowo-usługową, znajdują się tam zarówno sklepy, szkoły jak i restauracje. Kilka minut spacerem dzieli lokal od przystanków - autobusowego - linie nr. 169, 167, 911, 147 oraz tramwajowego - linia nr. 3, dzięki nim z łatwością można dostać się do innych części miasta. Lokalizacja sprawdzi się idealnie dla osób ceniących spokój oraz bliskość natury jak i prowadzących aktywne życie zawodowe lub uczelniane.

ŚWIADECTWO CHARAKTERYSTKI ENERGETYCZNEJ Wsk. EU: 87,6000 Wsk. EK: 125,9200 Wsk. EP: 102,8000 Wsk. Uoze: 0,0000 Wsk. Eco2: 0,0400

KOSZTY STAŁE:
Miesięczny czynsz najmu 
+ Około 1 360 zł czynsz administracyjny dla dwóch osób  w tym:
- 630 zł opłaty stałe ( koszty utrzymania nieruchomości wspólnej, opłata za utrzymanie miejsca postojowego itp)
- opłata za śmieci 25 zł/osoba
- zaliczki na zimną i ciepłą wodę oraz na centralne ogrzewanie zależne od zużycia 
+ 300zł miejsce postojowe 
+ Prąd według rachunków
+ internet i TV kablowa dla chętnych

KOSZTY JEDNORAZOWE
5000 zł kaucja zwrotna po okresie najmu

Szczegóły i więcej zdjęć na www.euro-dom.co

KONTAKT
Magdalena Zambrzycka
Doradca ds. Nieruchomości
+48 733-677-690
m.zambrzycka@euro-dom.co

EURO-dom.CO Sp. z o.o.
Biuro Doradców ds. Nieruchomości ul. Starołęcka 7, Poznań
Biuro Zarządców Nieruchomości os. Rzeczypospolitej 1, Poznań
tel/fax (+48)61-639-33-61
www.euro-dom.co

Oferta nie spełnia oczekiwań? Sprawdź więcej ofert na www.euro-dom.co lub wyślij nam zapytanie.
Dla komfortu naszych klientów oferujemy usługi z zakresu:
1.Profesjonalnego pośrednictwo w obrocie nieruchomościami- sprzedaż, zakup, wynajem, doradztwo; - mieszkań, domów, gruntów oraz lokali komercyjnych.
2. Pośrednictwa kredytowego (bezpłatnie kilkanaście) oferujemy kredyty: hipoteczne, gotówkowe, konsolidacyjne, firmowe, leasing, i inne dopasowane do potrzeb klienta.
3. Ubezpieczenia kilkanaście Towarzystw Ubezpieczonych w jednym miejscu, oferujemy ubezpieczenia: komunikacyjne, majątkowe, firmowe, turystyczne, na życie oraz najemców.
Wszelkie dane dotyczące nieruchomości uzyskano na podstawie oświadczeń zamawiających. Powyższy opis ma charakter informacyjny i nie stanowi oferty w rozumieniu przepisów art. 66§ 1. Kodeksu Cywilnego
Zdjęcia i opisy w tej ofercie objęte są ochroną praw autorskich majątkowych i osobistych, stanowią własność w świetle prawa autorskiego. Wykorzystywanie ich lub rozpowszechnianie bez pisemnej zgody autora, jest naruszeniem praw autorskich i pociąga za sobą odpowiedzialność prawną.

Wirtualny spacer

Pośrednik Nieruchmości

Proszę wprowadzić poprawne imię i nazwisko
Proszę wprowadzić poprawny numer telefonu
Proszę wprowadzić poprawny adres e-mail
Proszę zaznaczyć wymagane zgody
Rozwiąż równanie:
18 4
Niepoprawny wynik